特長
❶ 柔軟な構造の管路が構築
継手に地震変位を吸収するゴムを使用しているため、大規模地震の揺れにもフレキシブルに対応します。
❷ 縦締め工・目地工・可とう継手が不要
SJ-BOXは、個々の目地部が可とう性を有する構造となっているため、PC鋼材による縦締め工や可とう継手、目地工が不要です。
❸ 優れた水密性・可とう性
差し込むだけで0.06MPaの止水性を確保できます。
❹ 大幅な工期短縮
埋め込みゴムの圧密で止水性を確保しており、製品を接合するだけですぐに埋め戻しができ、施工性が非常に優れています。
❺ 公的機関の認証取得済み
・下水道用鉄筋コンクリート製ボックスカルバート(JSWASA-12)
・下水道用プレキャストコンクリート製ボックスカルバート(JSWASA-13)
・(公財)日本下水道新技術機構建設技術審査証明書
❻ 耐震性ゴムリング継手付ボックスカルバートの実績No1
(平成15年4月~令和2年3月)
SJ-BOXは、230kmを超える実績と、柔構造樋管、大型断面二分割、共同溝など豊富な実績・実験・試験の蓄積や経験があります。
仕様
🔳継ぎ手構造


🔳機能

🔳抜出し性能

🔳経済性

🔳実績

🔳耐震計算時の取り扱い方
●斜角部
斜角部は、斜切面同士がボルト連結により耐震計算上は、一体であるものとして検討を行います。
そのため、耐震計算では製品L寸法を長く、SJ-BOXのゴムリング継手間隔、右図でL1+L2の長さで計算を行います。
また、ボルト連結で耐震計算上一体であるかの照査は、ボルト連結部に製品重量に相当する力を作用させて照査を行います。
これは、製品重量相当以上の力がジョイント部に作用した場合、隣のSJ-BOXの目地部が動くため、ボルト連結部に大きな応力が発生しないと考えられるからです。
以上のような検討方法でゴムリング継手のある製品、SJ-BOXの斜角部の耐震検討を行います。
なお、斜角面がレベル1地震動で止水性を確保できるように土木用ウレタン系シーリング材で内目地をすることを標準としています。また、このような考え方の妥当性は、FEMによる試算を行って確認をしています。

●人孔際
人孔際は、ヒューム管と同様に短函(製品長の短いSJ-BOX)を人孔際に配置することにより、SJ-BOXゴムリング継手部の可とう性を活かして、耐震検討を行なうことを標準としています。
これにより、高価な可とう継手を使うことや特殊な施工をすることがなく、耐震性を確保できます。

種類・用途
●RCボックスカルバート
RCボックスカルバートは外圧強さにより、1種製品と2種製品が区分されております。
1種、2種とも形状寸法、許容応力度法による設計における適用土被りの範囲等は同じですが、2種については主としてコンクリート用膨張混和剤を使用し、ひびわれ強度を大きくした製品であり、腐食性環境の下水路等に使用します。
●ボックスカルバートの形状
1)ボックスカルバートは断面形状により、標準形とインバート形に区分されます。
2)異形製品
・マンホール用......マンホールとの接合用開口部を設けたボックスカルバート
・取付管用............取付管との接合用開口部を設けたボックスカルバート
・斜角用...............管路の屈折部や曲線部に使用するボックスカルバート
・調整用...............管路の延長の関係から、標準製品の有効長さを調整したボックスカルバート
🔳RCボックスカルバート
● 設計条件

● SJ-BOX 構造図

標準規格
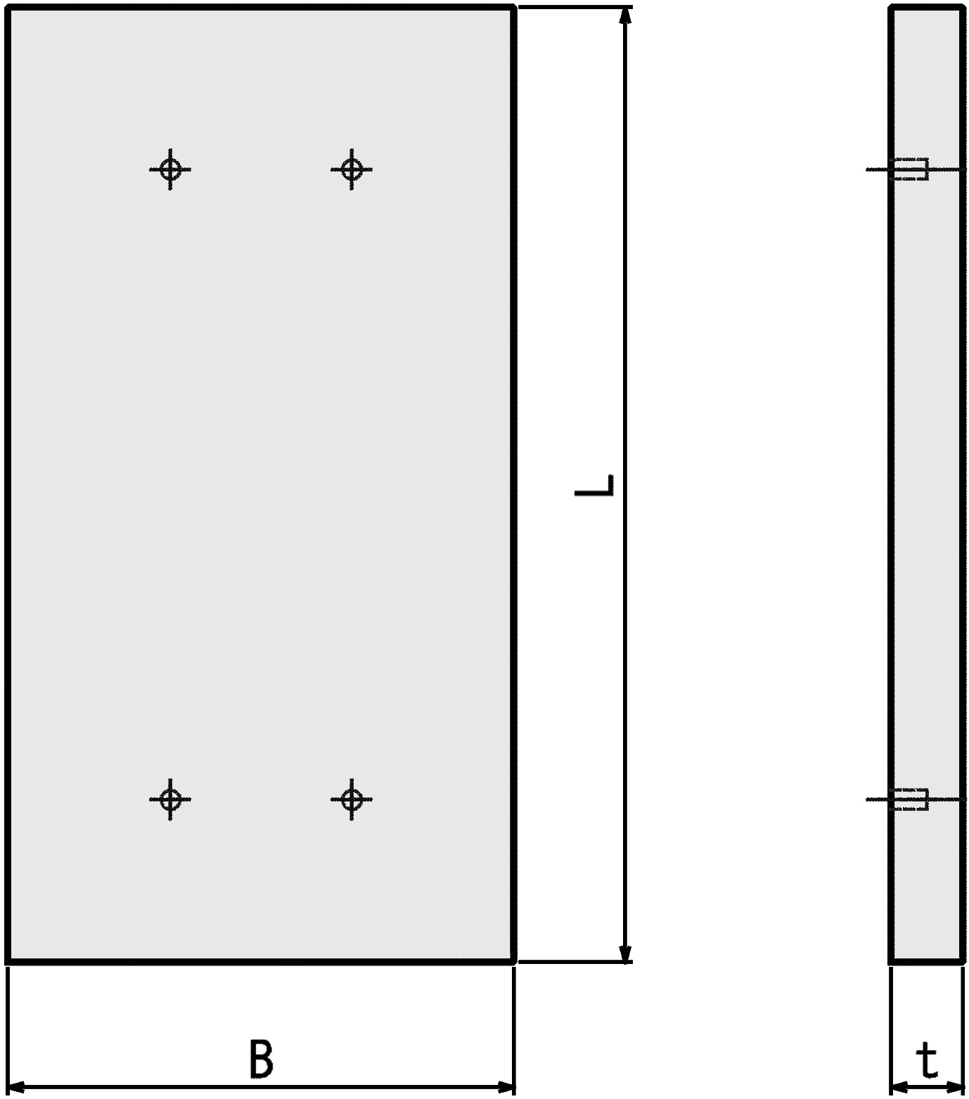
● RC-1種、2種の寸法(鉄筋コンクリート構造)
(単位:mm)

(単位:mm)

※1 上記標準寸法以外はお問い合わせください。
※2 有効長は、1500mmまたは1000mmとすることができます。
※3 施工用の引き込み孔を設けることができます。
🔳プレキャスト基礎板
●概要・特長
現場打である基礎コンクリートをプレキャスト化したコンクリート板です。省力化・工期短縮が図れ、型枠が不要となり産業廃棄物を抑制することができます。
● 基礎両端タイプ

(単位:mm)

● 基礎全面タイプ

(単位:mm)

※1 上記以外のサイズについてはお問い合わせください。
※2 幅(B)寸法はボックスカルバートの外幅+200mmを標準としています。
※3 ボックスカルバートの他に、L型擁壁や開水路の基礎板としても使用できます。
※4 関東地域のみの取り扱いとなります。
施工歩掛
● 歩掛区分


※1 本歩掛で対象としている製品は、1ブロックを1部材で構成するものです。
※2 歩掛は、運搬距離30m程度までの小運搬を含むものであり、床掘り・埋戻し・残土処理は含みません。
※3 インバート形状の場合、内空高は最大値となります。
※4 ラフテレーンクレーンは賃料とし、規格は別表によります。ただし、作業半径等現場条件が特殊な場合は別途検討します。
※5 雑工種および諸雑費は、労務費・ラフテレーンクレーン運転費の合計額に率を乗じた金額を上限として計上します。なお、雑工種および諸雑費に含まれる内容は次のとおりです。
【雑工種(基礎砕石)】
敷設・転圧労務・材料投入・締固め機械運転経費・砕石等材料費
【雑工種(均しコンクリート)】
打設・養生・型枠製作・設置・撤去労務・電力に関する経費・シュート・ホッパ・バイブレータ損料・コンクリート・養生材・均し型枠材料費
【諸雑費】
レバーブロック他引き込み具の損料・敷モルタル等の材料費
※6基礎砕石の敷均し厚は25cm以下を標準としており、これにより難い場合は別途計上します。
※7本歩掛には、均しコンクリート型枠施工時の剥離材塗布およびケレン作業を含みます。
柔構造樋門対応
特長
❶経済性抜群
従来工法(二次製品)と比較して、コストダウンが可能です(直工費比較)
❷可とう継手・PC縦締工が不要
❸目地工は不要
❹施工性抜群!接続するだけ!
勾配のない受け挿し形状とゴムリングにより、自動的にBOXのセンターが整合します。
❺個々の継手に可とう性
個々の継手に可とう性があるので、地盤と函体間の変位差(相対変位)が小さくなり、堤防内に空洞の発生が少なくなります。また、躯体縦方向の発生断面力も小さくなります。

柔構造樋門 SJ-BOX
・樋門函体と基礎地盤の相対変位

●水密性能
標準位置及び許容抜け出し位置における内水圧試験(内水圧:0.15MPa、3分間保持)で水密性能を確認しています。
施工事例







