特長
❶ レベル2地震動に、ほとんどのケースで対応可能
(公社)日本下水道協会発行の「下水道施設の耐震対策指針と解説」に示すレベル2地震動に、ほとんどのケースで対応可能です。
❷ 深いマンホールに最適
深いマンホールの場合は、一般に流入・流出が大きくなります。当製品では流入・流出管による断面縮小があっても残存壁面が多く、また基礎ブロック(B)については底版も、一体成形しているため安全です。地下水位も考慮しております。
❸ 種類が豊富
現場のニーズに対応出来るよう、サイズは1000mm×1000mmから3500mm×1500mmまで13種類の規格化をしました。
❹ マンホール空間が広い
箱形部はマンホール空間が広いため、ほとんど内側で作業ができます。また、将来の維持管理が容易になります。
❺ 施工が簡単
部材を基礎ブロックからマンホール蓋まで順次組み上げるだけですので、熟練工を必要とせず現場施工が簡単です。特に、基礎ブロック部分が上下2分割になっているため流入・ 流出管の取付けが容易にできます。
❻ 矩形開口にも対応可能
円形開口だけではなく、アーチカルバート・ボックスカルバートの流入・流出にも対応できます。
❼ 品質が安定
品質管理された工場製品ですので、品質及び強度にバラツキがありません。
● 部材名称

適用範囲

※1 マンホール深さは最大値を示しています。
※2 頂版(S)の許容最大土被りは4.5m(最小土被りは11cmです)
※3 深形は2000A形〜3500形に対応しています。
※4 深形は記号にFをつけます。たとえばBF、MBF、MFと表記します。
※5 水平土圧係数0.5
※6 特殊な条件下では別途耐震設計をいたします。
設計上の注意点
(1)開口方法
サイズ選定にあたっては、開口がハンチにかからないようにします。
※基礎ブロック(B)底版部にも50mm以上のハンチがあるので開口が、かからないようにします。
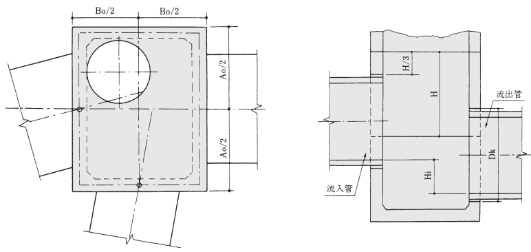
(2)斜めに流出入する場合の制限
管を斜めに流出入させる場合の管中心線の位置は、下図に示すように管中心線がエスホール側壁の中心点を通る位置とします。これはボックスカルバートが流出する場合も同様とします。
(3)基礎ブロック(MB)の開口残り
開口残りは使用する基礎ブロック(MB)の有効長の1/3以上を原則とします。ただし、有効長1500mm以上の基礎ブロック(MB)では表の値以上とします。

(4)ステップ
ステップは1000〜3000形で300ワイド、3500形で400ワイドを標準とします。

頂版(標準:S)
● 形状

標準規格
(単位:mm)

※1 開口径は1000形〜3000形でφ600 or φ900、3500形でφ900 or φ1200とします。
※2 ステップ位置は短辺側の内側から見て左側を標準とします。
※3 参考質量は開口径φ900の場合です。
頂版ブロック(標準:SB) ※浅埋対応可能
● 形状

標準規格
(単位:mm)

● 開口を考慮しない製品質量
(単位:mm)

中間ブロック(標準:M)(深形:MF)
● 形状

標準規格
(単位:mm)

(単位:mm)

基礎ブロック(標準:MB)(深形:MBF)
● 形状

標準規格
(単位:mm)

(単位:mm)

※1 参考質量の( )内はヒューム管最大径流出入各1ヶ所の開口を考慮した質量です。
※2 深形の質量も標準と同じです。
基礎ブロック(標準:B)(深形:BF)
● 形状

標準規格
(単位:mm)

※1 3500形の底版部は薄肉加工が施してあります。
※2 参考質量の( )内はヒューム管最大径流出入各1ヶ所の開口を考慮した質量です。
※3 深形の質量も標準と同じです。
中床版(標準:F)
● 形状

標準規格
(単位:mm)

継手の構造

(単位:mm)

施工事例
