特長
❶ 維持管理が容易
内部の階段とステップにより直接入坑ができ、維持管理が容易です。
❷ 衝撃や振動を抑制
内部がらせん構造になっているため、落流水の衝撃や振動の抑止効果が大きいです。
❸ 安全
階段部にはガス探知用の孔を設置しているため、安全に入坑できます。
❹ ラインナップ
5種類のラインナップで深さ最大50mまで対応可能です。蓋版、調整側壁1、落差部、調整側壁2、底版から構成され、部材間は連結し、目地部は防水します。
❺ 大幅な工期短縮
現場打ちコンクリートによる落差工と比べ、施工性に優れ、大幅な工期短縮、省人化が可能です。
❻ 省スペース
水路と管理空間が一体構造のため、設置箇所の省スペース化、立坑の小型化に大きく貢献します。
適用範囲

※1 スパイラルホールの外周の立坑との余裕
標準型:立坑の施工精度(誤差)に加え、さらに10cm以上確保してください。
大深度型:立坑の施工精度(誤差)に加え、さらに80cm以上確保してください。
※2 立坑の施工精度は、1/200程度を想定しています。
※3 上記の最大開口径は物理的に開口できる最大寸法であり、その管径の流量を保証するものではありません。
※4 流入管、流出管が立坑内に突出する場合は、施工手順を考慮した立坑との余裕としてください。
Φ1500
● 形状

● 数量表

※本数量表は上記の構造図を元にした参考数量(質量)です。
● φ1500の部材形状

Φ2000
● 形状

※ マンホール総高と土被り厚により、蓋版と底版の寸法が変わる可能性があります。
標準規格
● 数量表

※ 本数量表は上記の構造図を元にした参考数量(質量)です。
● Φ2000の部材形状

Φ2400
● 形状

※ マンホール総高と土被り厚により、蓋版と底版の寸法が変わる可能性があります。
● 数量表

※1 本数量表は、上記の構造図を元にした参考数量(質量)です。
※2 本タイプは径が大きいため、各部材が分割式となっています。
※3 リングとは、分割された部材が組み合わされた状態の呼称です。
リングの組み合わせは上表のリング欄並びに次項の部材形状図を参照してください。
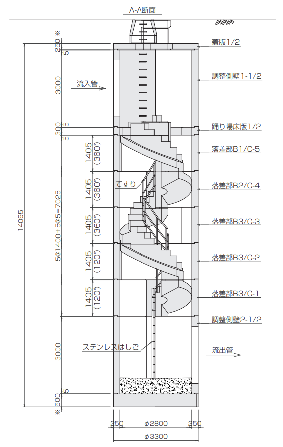
(例)上記構造図で「落差部A/C-10」とは、上記数量表の「落差部A」と「落差部C」を 組み合わせたひとつのリングで、
落差部としては、下から数えて10個目という意味です。
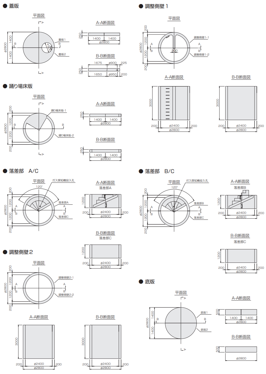
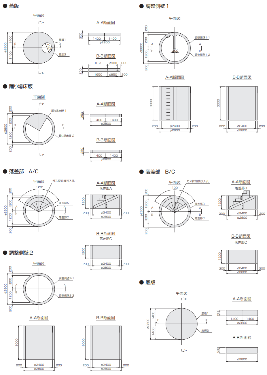
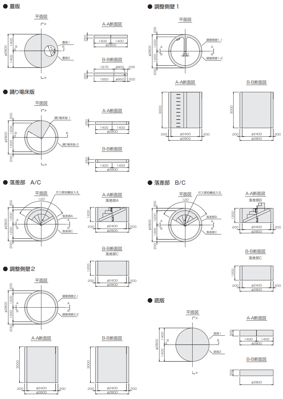
● Φ2400の部材形状

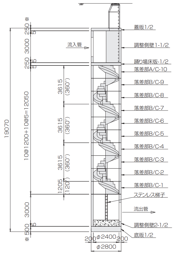
Φ2800
● 形状

※ マンホール総高と土被り厚により、蓋版と底版の寸法が変わる可能性があります。
● 数量表

※1 本数量表は、上記の構造図を元にした参考数量(質量)です。
※2 本タイプは径が大きいため、各部材が分割式です。
※3 リングとは、分割された部材が組み合わされた状態の呼称です。
リングの組み合わせは上表のリング欄並びに次項の部材形状図を参照してください。
(例)上記構造図で「落差部A/C-10」とは、上記数量表の「落差部A」と「落差部C」を組み合わせたひとつのリングで、
落差部としては、下から数えて10個目という意味です。
● Φ2800の部材形状

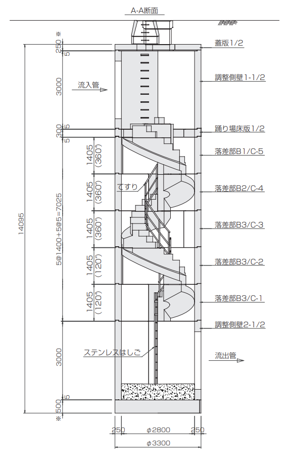
Φ2800(作業孔付き)
● 形状

※ マンホール総高と土被り厚により、蓋版と底版の寸法が変わる可能性があります。
● 数量表

※1 本数量表は、上記の構造図を元にした参考数量(質量)です。
※2 本タイプは径が大きいため、各部材が分割式です。
※3 リングとは、分割された部材が組み合わされた状態の呼称です。
リングの組み合わせは上表のリング欄並びに次項の部材形状図を参照してください。
(例)上記構造図で「落差部B1/C-5」とは、上記数量表の「落差部B1」と「落差部C」を組み合わせたひとつのリングで、
落差部としては、下から数えて5個目という意味です
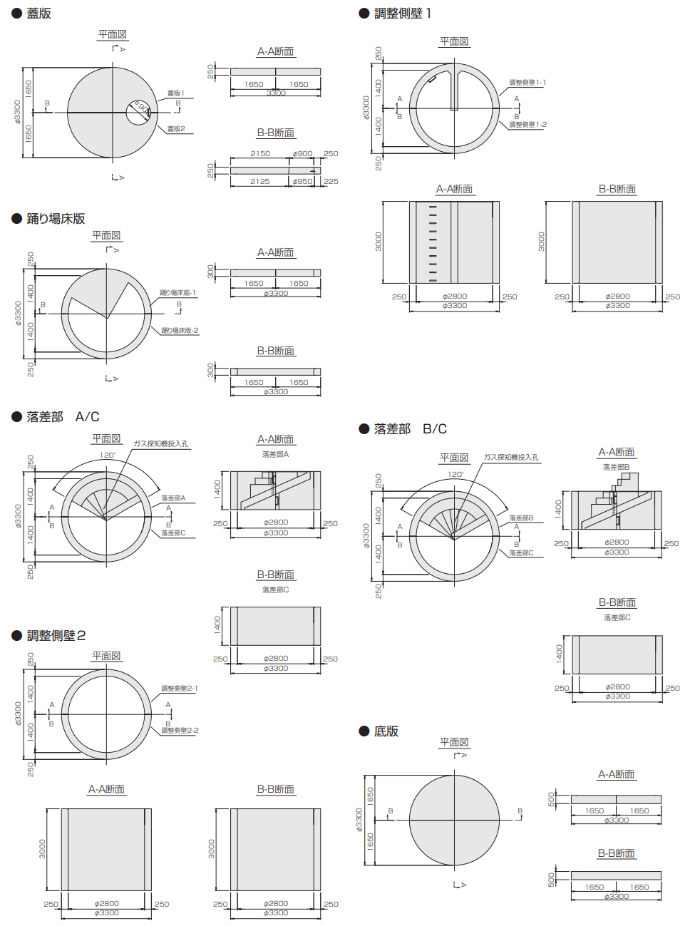
● φ2800 作業孔付きの部材形状

施工事例

施工手順

実験(水理特性)
日本大学、首都大学東京と共同研究および各種社内の実験により排水能力・流下形態・連行空気量・内気圧変化等の 流下特性を確認し実証しています。
