特長
❶大口径のプレキャストマンホールが可能
人孔部材を分割して運搬し現場で組立てるため、内径3.0mを超える大口径も対応可能です。最大で内径φ3.7mのプレキャスト特殊人孔の実績があります。
❷プレキャスト化により品質向上、工期短縮を実現
品質管理が徹底された工場で製造しますので、高品質で均一した品質を保ちます。また、現場打ちと比較して工期を1/2~1/3程度に短縮できます。
❸10m超の人孔深にも対応
人孔深さ30.0mまで対応可能です。(地盤条件により最大深さが変わります。)
❹オーダーメイドだから様々な形状に対応
円形だけでなく矩形にも対応可能です。その他、多段式中間床版(耐摩耗板埋込)方式、ドロップシャフト抱え込み方式などの実績があります。

施工手順

施工事例
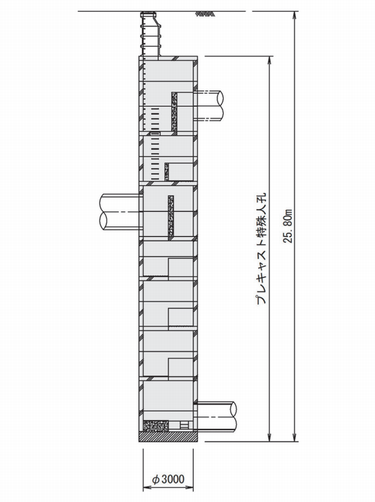
発 注 者:東京都下水道局
工 事 名:足立区千住中居町千住宮本町付近再構築工事
施 工 場 所:東京都足立区
マンホール内径:φ3000 落差処理:多段式中間床版(耐摩耗板埋込)方式
施 工 年 度:平成22年度

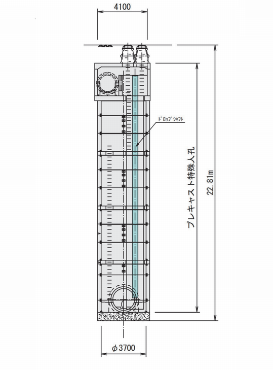
発注者:東京都下水道局
工事名:墨田区八広一、四丁目付近再構築工事
施工場所:東京都墨田区八広 マンホール内径:φ3700、φ3000
落差処理:ドロップシャフト抱え込み方式、一部矩形
施工年度:平成22年度

