特長
❶ ザ・ウォールⅡ(耐震型)は、最新の高い耐震化仕様にバージョンアップしています。
❷ 国土交通大臣認定擁壁では全国でトップシェアです。
❸ 国土交通大臣認定(宅地造成及び特定盛土等規制法施行令)を取得しているので、認定条件内であれば設計・計算等の手間が不要で、計画から認可までの期間を短縮でき、手続きも簡素化できます。
❹ 宅地造成及び特定盛土等規制法施行令に規定されている大規模地震動に対応しています。
❺ 直線部及びコーナー部製品共に、大地震対応の耐震設計を考慮しています。
❻ 前面が垂直なので、敷地境界線まで土地を最大限有効に使用できます。
❼ コーナー部は90°≦ θ<180°の任意の角度で、一体で製造できます。
❽ 認定条件の範囲で擁壁の天端にフェンスを取り付けることが可能です。
❾ 前面に表面化粧を施すことができます。(厚さ50mmまで。)直線部製品は、擁壁長を1.0mまで、短縮することができます。コーナー部製品は、擁壁高さと角度に応じて擁壁長の短縮が可能であり、施工性の向上を図ることができます。
「コーナー部製品の擁壁長Lの調整範囲」を参照してください。
● ザ・ウォールII(耐震型)の規格

設計条件

※1 建築基準法施行令第88条1項による地域係数
※2 見付率により異なります。


※1 建築基準法施行令第88条1項による地域係数
※2 見付率により異なります。
● 土圧及び土圧の作用面
●常時(長期) 〔主働土圧:Coulomb(クーロン)土圧式〕
●フェンス荷重時(短期) 〔主働土圧:Coulomb(クーロン)土圧式〕
●大地震時(短期) 〔主働土圧(受働土圧):物部・岡部の式〕

仮想背面(土圧の作用面)の位置 及び壁面摩擦角δは左表による。
● 安全率

● 部材計算許容応力度
(N/mm2 )

※付着欄の[ ]外は上端筋、[ ]内はその他の鉄筋を示す
(N/mm2 )

(注)(公社)全国宅地擁壁技術協会基準値
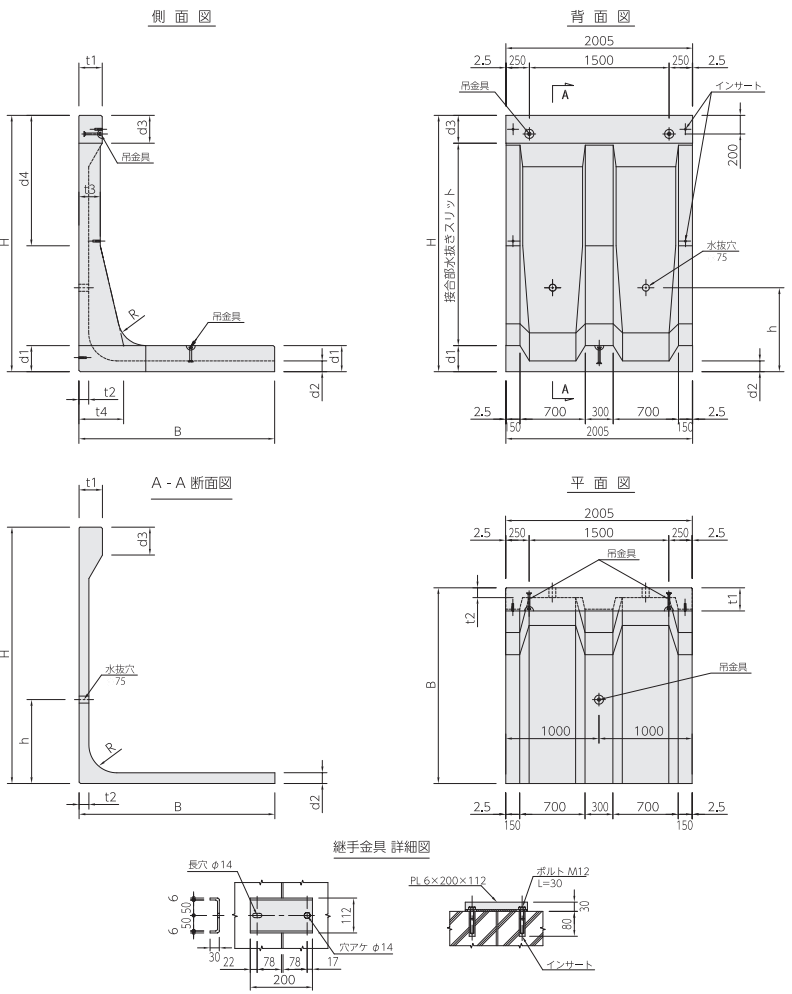
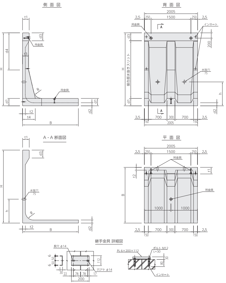
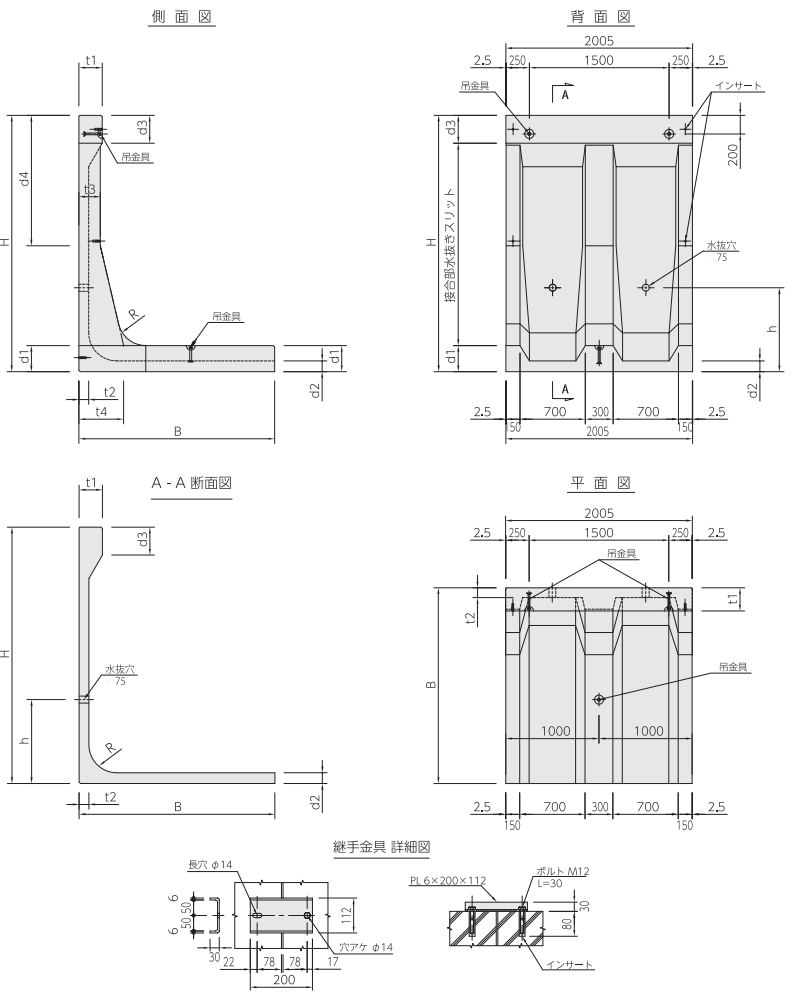
標準製品
● 形状

●標準規格
取扱地域 東北 関東 東海 関西 四国 北陸 中国
(単位:mm)

※1 吊治具はメーカー指定のものを使用してください。
※2 規格外の高さを使用する場合は、直近上位の規格の擁壁高を準用できます。
90°コーナー製品
● 形状

● 規格
(単位:mm)

120°コーナー製品
● 形状

● 規格
(単位:mm)

135°コーナー製品
● 形状

● 規格
(単位:mm)

150°コーナー製品
● 形状

● 規格
(単位:mm)

コーナー部 構造図(標準の例)
● 形状

※控えブロックは、「控えブロック使用条件表」に示す規格以上の大きさの呼び名を使用することができます。
コーナー部 構造図(擁壁長の短縮の例)
● 形状

※点線は、標準のコーナー製品形状を示す。
※控えブロックは、「控えブロック使用条件表」に示す規格以上の大きさの呼び名を使用することができます。
控えブロック
コーナー擁壁の滑動防止のために取り付ける部材です。土の内部摩擦角φが30°以上の場合は必要ありません。また、条件によって必要ない場合があります。(控えブロック使用条件表 参照)
● 控えブロック形状図


(単位:mm)
● 控えブロック使用条件(土の内部摩擦角φ=25°以上30°未満)

※1 控えブロックは、必要な面積以上の呼び名を使用しますので、上表の呼び名と異なる場合があります。
※2 上表は規格上の標準の設定であり、コーナー角度(θ)と擁壁長(L)を使用する製品の設計値に基づき、再計算行うことにより、控えブロックが不要な場合があります。
※3 標準擁壁長は、コーナー部の形状寸法表を参照してください。
● コーナー部部品の擁壁長Lの調整範囲
(単位:mm)

※上表の網掛け部が、擁壁長Lの調整範囲です。
● 基礎地盤に必要な長期許容応力度(必要地耐力)
(単位:kN/m2 )

※1 直線部、コーナー部ともに、標準の擁壁長と短縮した擁壁長を考慮しています。
※2 コーナー部の太線枠内が、擁壁長の短縮可能な範囲に該当します。
※3 化粧を施す場合は、上記表の値に10kN/m2を加算してください。
※4 フェンスを設置する場合は、上記表の値に5kN/m2を加算してください。
● 標準施工例

● 寸法表
(単位:mm)

● 使用材料参考表
(10m当り)

築造仕様
❶ 土質条件を確認してください
・ザ・ウォールⅡ(耐震型)の構造にあたっては、擁壁背面および基礎地盤の土質条件により本擁壁の適用の可否や施工方法等が異なるので、施工場所の土質を十分把握して、認定条件に適合したものであることを確認してください。
❷ 必要根入れ深さ
・宅地造成及び特定盛土等規制法施行令より、擁壁を岩盤に接着して設置する場合を除き、次の通りとしてください。

※「擁壁の高さ」は、「見え高」を示す。

❸ セットバック
・セットバックとは、前壁を用地境界より下げることです。セットバックの幅は、前壁に化粧模様を付ける、前壁のたわみ等を考慮する場合に、協議の上決定してください。
● 土の内部摩擦角φ=30°以上
(単位:mm)

● 土の内部摩擦角φ=25°以上30°未満
(単位:mm)

❹ 基礎及び敷モルタル
◇基礎
・標準施工例の通りとします。ただし、基礎地盤の許容応力度が不足していたり、部分的に基礎地盤が悪い場合には、許容応力度を確保できるように置換え工法、地盤改良、杭基礎等の基礎構造を適切に選定してください。
◇敷モルタル・基礎コンクリート上面と擁壁底面との間に間隙が生じないように、厚さ2cm程度の空練りモルタルを均等に敷き均してください。最終的に、敷きモルタルが密に充填されているかの確認をしてください。
❺ 埋戻し等
・埋戻し土は、各層毎に均一に所定の密度となるように締め固めし、機械の走行または偏心荷重により、擁壁が損傷を受けないように注意してください。また、雨水、地表面水の排水には十分配慮し、埋戻土の沈下を見込んだ余盛以上の土羽を設けないでください。
・高さの規格が異なる製品間やコーナー部と直線部間においてプレートによる連結ができない箇所が生じることがあります。この場合、埋戻し時の転圧等により製品のズレが生じないように十分注意してください。
❻ フィルター材及び透水層
◇フィルター材
・擁壁背面の土砂が、目地および水抜穴から流出することを防止するために、耐食性の吸出し防止フィルターを各水抜穴の周辺部分と排水用目地部分に設置してください。
◇透水層
・前壁の背面には砂利等を全面に施した透水層を設置してください。また、浸透水を有効に排水するために、透水層の最下端部分に、止水コンクリートを設置してください。
・透水層は、砂利等の材料を用いてフィルターが剥れ落ちないように、擁壁の背面に慎重に施工してください。
・透水層の厚さは、原則として30cm以上としてください。
・透水層として、砂利等の代わりに透水マットを使用することもできます。この場合、建設省経民発第22号、建設省住指発第138号による「擁壁用透水マット技術マニュアル」((公社)全国宅地擁壁技術協会)に準拠してください。
❼ フェンス設置
・擁壁の天端に直接フェンスを取り付けることができます。地域により設置可能なフェンス高さ、見付率が異なります。
・「地域による設置可能なフェンスの高さ、見付面積率」を参照してください。
・フェンスの支柱間隔が2m以下、フェンスにかかる風圧力が1kN/m以下、フェンス自重が50kg/m以下としてください。
・フェンス支柱の中心は擁壁天端厚中心または前壁前面から75mm、フェンス穴加工範囲は製品両端から165mm以内の部分を除く範囲にフェンスを設置してください。
・フェンス支柱箇所の現場加工は、認定範囲外となります。
❽ コーナー部の対応
・隅角部の施工は認定範囲内のコーナー製品が使用可能な箇所については、コーナー製品を使用し、それ以外の箇所は、「宅地防災マニュアルの解説・解説編Ⅰ」に従って現場打ちコンクリート構造としてください。
🔳 フェンスの地域による設置可能なフェンス高さ、見付面積率
● 設置可能なフェンス高
(m)

※1 上表の「─」は国土交通省大臣認定の条件においては使用不可となります。
※2 平成12 年5月31日建設省告示第1454 号に示された地域別の風速によります。
設置する地域・自治体の風速条件をご確認し、それに基づいてください。
🔳 中地震・大地震の区分

🔳中地震・大地震の区分 「宅地防災マニュアルの解説」より引用
●中地震(中規模地震動)
標準設計水平震度k0=0.20 供用期間中に1 ~ 2度程度発生する確率を持つ一般的な地震動です。一般に震度5程度の地震を想定しています。
●大地震(大規模地震動)
標準設計水平震度 k0=0.25 発生確率は低いが直下またはプレート境界で発生する地震を想定した高レベルの地震動です。一般に震度6 ~ 7程度を想定しています。
●設計水平震度
標準設計水平震度k0=0.25に地域別補正係数Zを乗じて求めます。
地域別補正係数は、
建築基準法施行令第88条1項に規定するZの値

※静岡県の地震地域別補正係数は、建設省告示では1.0ですが、静岡県建築構造設計指針による静岡県地震地域係数によって1.2と定められています。
施工事例
