特長
❶ 地震時も完全自立式
既存建物に一切負担をかけない構造です。
❷ 従来工法(S造)よりもスリムなシャフト
シャフトの寸法が小さく、施工時の外足場も不要です。
❸ 工期の大幅な短縮が可能
シャフト部の組み立ては、わずか4日で完了いたします。
❹ メンテナンス大幅減
コンクリート製なので、錆びることがなく、耐久性に優れています。
❺ 協会統一規格
全国PCaエレベーターシャフト協会の規格品です。
❻ 安全安心な構造
昭和58年建設省告示第1320号(プレストレストコンクリート造)に適合 しています。

🔳特長1 自律式
● エキスパンションジョイント(EXP.J)
エキスパンションジョイントを介して増築する工法のため、既存建物へ負担をかける事がありません。
● 地震時でも単独安定
工場生産した各種鉄筋コンクリート部材をPC鋼棒で圧着接合することにより、地震時でも単独で安定する昇降路建物です。


🔳特長2 スリム
❶ シャフト部の床面積は、従来工法(鉄骨+ALC)の約65%となり非常にコンパクトです。

※1 施工時の仮囲いを加味すると、約半分になります。
※2 在来工法の寸法は、4人乗り用(階段室型在宅用)の場合の参考寸法です。
❷ 施工時の組み立ては内足場のみで外足場が不要であるため、工事スペースが小さくなります。

❸ 既存建物をそのままにして『増築』ができます。
既存建物に後からエレベーター昇降路を取り付ける工事は『増築』として扱われます。
〈建築基準法第86条の7〉(既存の建築物に対する制限の緩和)により、〈建築基準法施行令第137条の2〉(構造耐力関係) の規定を満たせば、既存建築物に対する制限が緩和されます。ラクシスは既存建物としてExp.Jを介して接続しますので、既存部分の構造耐力上の危険性が増大しないため、増築部分の面 積が小規模(既存部分の1/20以下かつ50m2以下)であれば、構造耐力関係での既存部分への遡久はありません。

🔳特長3 工期短縮
ラクシスは、1基あたり、通常4日での施工が可能です。
従来の鉄骨造で構築する場合と比較して、躯体の工期は約1/10となり、全体工期の大幅な短縮が可能です。


🔳特長4 メンテナンス大幅減
コンクリート製なので、錆びることがなく、耐久性に優れています。

種類
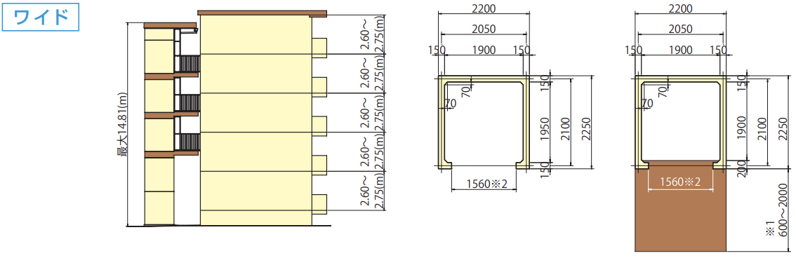
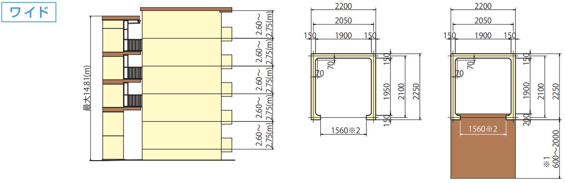
【4人乗り用】
設置対象:階段室型共同住宅、共用廊下型共同住宅 (単位:mm)
エレベーターメーカーの仕様に応じて、標準、ワイドタイプの2種類をご用意しております。


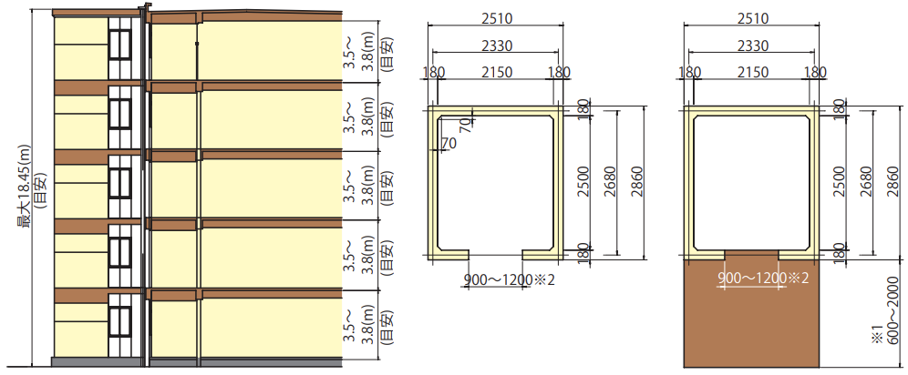
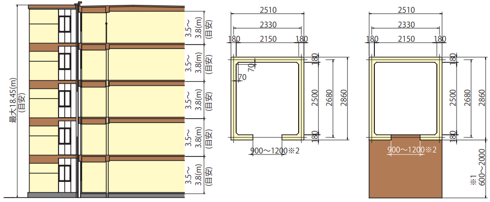
【6~15人乗り用】
設置対象:学校・その他公共施設等

※1 連絡通路長さが600mm以下についてはご相談ください。
※2 エレベーターメーカーの仕様に応じて寸法が異なります。
標準規格
(単位:mm)

※4人乗り用はエレベーターメーカーにより必要内空寸法が異なります。
施工事例
▢ 集合住宅・団地
入居率の向上が期待できます。それにより資産価値の維持が期待できます。 階段室型、共用廊下型の集合住宅に設置が可能です。

▢学校
夏休み等の休暇期間内での組立完了が可能です。楽器内の工事であれば、学童の安全を確保し、授業への影響を最小限に抑えることができます。

▢公共施設
施設開放しながらの工事が 可能です。利用者への影響 も大幅に削減できます。

▢歩道橋
利用者の少ない夜間の施工が可能です。大きな仮設スペースは必要ありません。 ウォークスルー式の設置も可能です。
