特長
❶(一社)ハイタッチセンターの規格に準拠した製品です。
❷ 認定擁壁なので、認定条件内であれば手続きが簡素化でき、期間の短縮、コストの削減が図れます。
❸ 擁壁高3.25m ~ 6.0mまで規格化されています。
❹ 前面がほぼ垂直で、天端に直接フェンスを取り付けることができるため、最大限土地の有効利用が図れます。
❺ 前面に表面化粧を施すことができます。
❻ 地震時の設計水平震度 kh=0.20に対応しています。
設計条件と形状
●土質定数

●許容応力度
(単位:N/mm2 (kgf/cm2 ))

●基礎地盤の必要地耐力
(単位:kN/m2 (tf/m2 ))

●安定計算安全率


● 標準施工断面図
根入れ寸法表
(単位:mm)

※1 φ=基礎地盤の内部摩擦角。
※2 上表の根入れ深さ:Dfは、最小値です。根入れ深さ:Dfは、基礎地盤の内部 摩擦角:φにより変わります。
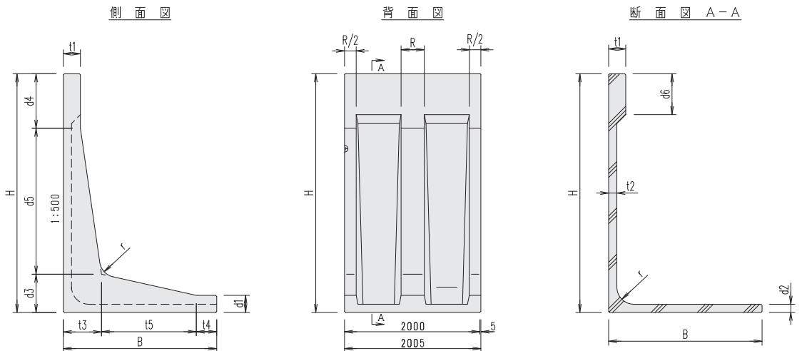
● 形状

標準規格
(単位:mm)

※H=6000は底版が分割式で、現場で一体化させます。
築造仕様
ハイ・タッチウォールの築造に際して、擁壁背面及び基礎地盤の土質条件により施工方法が異なりますので、施工場所の土質を十分把握してください。
①隅角部等で単体の規格のものが使用できない場合には、現場打ちコンクリートで施工してください。
②岩盤に接着して設置する場合を除いて、根入れ深さは、前壁高さの15/100(その値が35cmに満たないときは35cm)以上にしてください。ただし、基礎地盤の内部摩擦角が30度未満の時には、前壁高さの20/100(その値が45cmに満たないときは45cm)以上としてください。
③基礎は、基礎コンクリート10cm以上基礎砕石20cm以上としてください。
④据え付けに際し、基礎コンクリート面と擁壁底版との間に隙間が生じないように、厚さ2cm程度の良く締固められた敷きモルタルで不陸を処理してください。
⑤前壁の背面には砂利等による透水層を設けてください。
⑥擁壁背面の土砂が目地及び水抜き穴から流出することを防止するために、耐食性の吹出し防止フィルターを設置してください。
施工手順

施工事例
