特長
❶ 高い安全性
プレストレスの導入により一体化を図っています。実車突試験によって安全性能が確認されています。
❷ 工期短縮
プレキャストのため、工期の短縮が図れます。夜間工事・集中工事などで、即時復旧が可能です。
❸ 多様な対応
上下車線に段差があっても対応可能です。曲率半径が小さい区間でも設置が可能です。仮設として設置し、その後、 本設に移行設置することも可能です。実車衝突試験により 計算手法を確立しているので、規格外の対応も可能です。
● プレキャスト製剛性防護柵の仕様記号

※(公社)日本道路協会「車両用防護柵標準仕様・同解説」より抜粋
仕様記号の表記は以下の通りです。
① Rp:プレキャストコンクリート製防護柵
② SS(SSm)、SA(SAm)、SB(SBm)、SC(SCm):道路種別( )は分離帯用
③ 形状記号 F:フロリダ型 S:単スロープ型
④ 埋め込み区分 E:土中埋め込み用 B:構造物設置用
●種別の選定
車両防護柵は、強度(車両が衝突したときに突破されない衝撃度の大きさ)および設置場所に応じて種別が設定されています。SC(SCm)〜SS(SSm)の高強度区間ではコンクリート製剛性防護柵が最適です。SC以下の低強度区間でコンクリート製剛性防護柵を使用する際は、SCを準用します。

※(公社)日本道路協会「車両用防護柵標準仕様・同解説」より抜粋
● 種別の適用
種別の適用は、道路の区分、設計速度および設置する区間に応じて行われます。ただし、走行速度や線形条件などにより特に衝撃度が高くなりやすい区間では、1段階上またはそれ以上の種別を適用することができます。

※(公社)日本道路協会「防護柵の設置基準・同解説」より抜粋
*重大な被害が発生するおそれのある区間
・大都市近郊鉄道、地方幹線鉄道との交差近接区間
・高速自動車国道、自動車専用道路などとの交差近接区間
・走行速度が特に高く、交通量が多い分離帯設置区間
・その他重大な二次被害の発生するおそれのある区間
フロリダ型
● 分離帯用土中埋め込みタイプ(舗装埋め込みタイプ)


標準規格
(単位:mm)

● 路側用土中埋め込みタイプ(舗装埋め込みタイプ)


標準規格
(単位:mm)

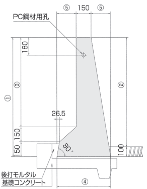
● 路側用壁高欄タイプ


標準規格
(単位:mm)

単スロープ型
● 分離帯用土中埋め込みタイプ(舗装埋め込みタイプ)


標準規格
(単位:mm)

● 路側用土中埋め込みタイプ(舗装埋め込みタイプ)


標準規格
(単位:mm)

● 路側用壁高欄タイプ


標準規格
(単位:mm)

施工手順



施工事例

保土ヶ谷バイパス(Rp-SBm-SE)

中央自動車道(Rp-SBm-SE)

西湘バイパス(Rp-SBm-FE)

東北自動車道(Rp-SB-FE)

磐越自動車道(Rp-SB-FB)

甲州街道(Rp-SB-FB 特)
実験


● 共同研究
旧建設省、旧日本道路公団、セメント協会(傘下にプレキャスト・ガードフェンス協会)による防護柵の共同研究で プレキャストガードフェンスの安全性能が確認されています。
● 共同研究で行った実車衝突試験
25tの大型車が時速100km、衝突角度15度(衝撃度650KJ)という世界でも 例の無い厳しい条件で実車衝突試験(於:国交省土木研究所)を行い、評価項目を全てクリアしました。


◆これらの実験からコンクリート製剛性防護柵は、大型車の突破を防ぎ、乗員の安全性に関する性能も 得られることが実証されました。