特長
❶ 高い信頼性
国土交通省より技術評価をうけています。(建技評第87302号)
❷ 雨水を有効に貯留浸透
雨水の貯留量が大きいので、調整池の機能があります。貯留量、浸透量が大きく、雨水管路を兼ねるので建設費が節減できます。
❸ 土地の有効活用
地下埋設型のシステムなので、景観を損なうことなく土地の有効利用ができます。
❹ 目詰まりしにくい
側面スリットから浸透させるため、目詰まりしにくいです。
❺ 維持管理が容易
施設内部は開口型なので維持管理が容易です。
❻ 環境保全
雨水を地下に還すことにより、自然の水循環となります。低炭素型コンクリート(LLクリート)にすることで、CO2削減ができます。
● 浸透の考え方
全国共通の技術指針としては、(公社)雨水貯留浸透技術協会で発刊されている 雨水浸透施設技術指針[案]調査・計画編が最も一般的で広く活用されております。また国土交通省の雨水浸透施設の整備促進に関する手引き(案)の中で浸透量を算出する式は、雨水貯留浸透技術協会式に基づいております。
● アーキス施工模式図

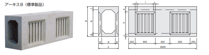
● 形状

標準規格
(単位:mm)

施工手順
