特長
❶ 高い強度による経済性
アーチカルバートは、上部がアーチ形、下部がボックス形をしているため、上部の荷重は軸方向圧縮力として伝達され、部材の上部及び側壁に生じる曲げモーメントは、ボックス形に比べて大幅に低減され高い強度をもつことができます。このため、高い土被りに対して特に有効であり、経済性が発揮されます。
❷ ゴム輪による高い止水性
アーチカルバートは、継手部にゴム輪を使用することにより、高い止水性を確保することができます。
❸ ゴム輪の弾力性による可撓性
アーチカルバートは、ゴム輪を使用しているため、地盤の多少の不同沈下に対しても、従来のモルタルコーキングと違い、ゴム輪の弾力性による可撓性が発揮され漏水の心配がありません。
❹ 工期の短縮による経済性
アーチカルバートは、ゴム輪を使用するため、継手部にモルタル目地を施す必要がなく施工が簡単で、工期の短縮による経済性が発揮されます。また、高土被り時の円形管において必要とされるコンクリート巻立ての必要がなく施工性、経済性に優れています。
設計条件と種類
● 設計条件

● 鉛直土圧係数

※1 セメント安定処理のような剛性の高い地盤改良をカルバートの外副程度に行う場合もこれに含む。
※2 盛土の沈下とともにカルバートが沈下する場合で軟弱地盤上に設置する場合も含む。
※3 H1:土被り、B ́:製品外幅
● 形状による種類

● 土被り条件による種類

(異なる種類同士でも接続可能)
標準形アーチカルバート(A規格)
特長
直線施工用の標準品で、継手部は凹凸形でゴム輪により接合します。
サイズは内幅800〜3000mmの10種があり、それぞれについて内高がI・II型は、内高/内幅比0.7〜1.2の6種類、特厚型は、1.0〜1.2の3種類を用意しております。
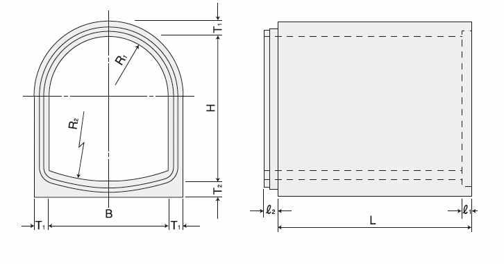
● 形状

● 標準寸法表

※1 上記標準寸法以外はお問い合せください。
※2 ( )内数字は特厚型の寸法を示しています。
縦方向連結形アーチカルバート(P規格)
次のような場合に使用します。
➀ 布設地盤が軟弱で不同沈下のおそれがある場合
② 地下水位が高く、高い止水性が必要な場合
③ ガス管、水道管、電気、通信ケーブル等を横断する場合
この製品には、PC鋼材定着用切欠穴の有無によってFタイプ(無)とHタイプ(有)の2種類があります。
● 形状

● 標準寸法表

※1 上記標準寸法以外はお問い合せください。
※2 ( )内数字は特厚型の寸法を示しています。
二分割形アーチカルバート(S規格)
特長
二分割形アーチカルバートは、アーチカルバートの構造的利点を生かし、近年の地下構造物の大型化に対応して、製品を分割生産し現場でPC鋼材にて緊結するもので、強度については工場実験で従来の一体成形品と同等であることが実証されています。
内幅は3500〜5000mm、内高は3500〜5400mm、土被りは3.5m用および8m用を用意しています。
● 形状

● 標準寸法表 (SP3.5型:土被り3.5m用)

● 形状

● 標準寸法表 (SP10型:土被り8m用)

※上記設計条件以外はお問い合わせください。
許容土被り

● プレキャストアーチカルバート標準形の適用土被り (平成22年3月改訂)
(単位:m)

(単位:m)

※1 最小土被りは、0.5mです。
※2 許容土かぶりを超える場合は、お問い合せください。
施工手順
➀基礎の施工
均しコンクリートを所定の高さに仕上げてください。

②据付け
均しコンクリートの上にカラ練りした敷モルタルを施し、製品を据付けてください。

③接合1
製品のメス部、ゴム輪をウエス等でよく清掃後、滑剤をハケ等で均等に塗布してください。
[注意事項]
大口径のゴム輪を装着する時は、充分 な足場を確保して行ってください。

④接合2
接合するアーチカルバートを、多少吊り上げ気味にし、レバーブロック、チルホール等で引き込んでください。
[注意事項]
レバーブロック、 チルホール 等 は、 製品重量の 6割以上の能力を有する ものをご用意ください。
引き込み用ワイヤーは、十分強度の 有するものを、ご使用ください。

⑤目地及び吊り孔の仕上げ
吊り孔は、ゴム栓を打ち込み後、引き込み孔と同じく、モルタル仕上げをしてください。また、継手部のスキ間に化粧目地が必要な場合はモルタル目地を施してください。

※側面の吊り穴は、現在、上面の吊り金具の仕様にしています。
⑥埋め戻し
埋め戻しは、頂部30cmまでは特に指定のない限り、一層の厚さを30cmずつ施工し、両側均等にランマー等を用いて、十分に突き固めを行ってください。

施工事例
● A規格


● S規格

