特長
❶ 施工性の向上
優れた強度特性を有している超高強度繊維補強コンクリートを使用することにより、部材の軽量薄肉化を実現しました。施工性が向上し、省力化・工期短縮を図ることが可能です。
❷ 優れた耐久性
使用する材料の透水係数や塩化物イオンの拡散係数は、通常のコンクリートに比べて著しく小さいことから、劣化因子が浸入しにくく、優れた耐久性を有しております。
❸ 特殊部にも対応
無筋構造のため曲がり部や勾配変化部などの際は、現場加工が可能です。
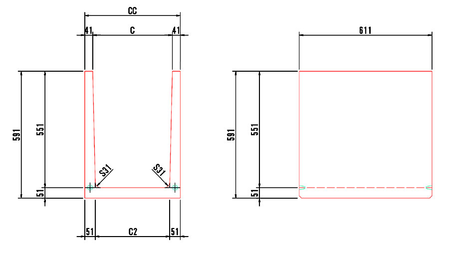
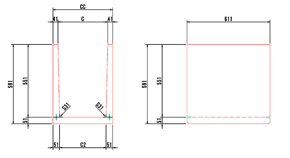
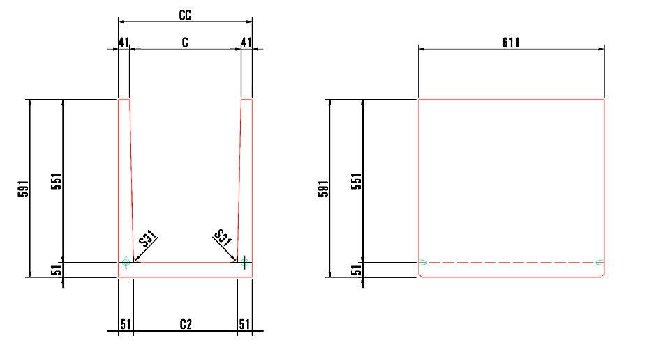
● 接続仕様

標準規格
● 本体

●蓋

(単位:mm)
