特長
❶ 安全な部材性能
超 高 強 度 および高じん 性を兼 ね 備えた材 料により、 薄肉・軽量化が図られました。 部材安全性は、静的およ び疲労載荷試験(200万回)により確認しています。
❷ 高い耐久性能
土木学会「超高強度繊維補強コンクリートの設計・施工指針 (案)」に適合した材料を使用しており、塩害、中性化、凍結 融解などの厳しい環境下に対しても高い耐久性が証明され ています。
❸ 施工性の向上
薄肉軽量化により施工の合理化、省力化、急速施工を 実現し、大幅な工期短縮が可能となります。
❹ 騒音への配慮
所要の遮蔽性能を満足することを、音響透過損失測定 により確認しています。
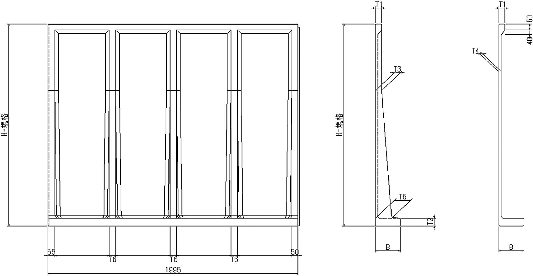
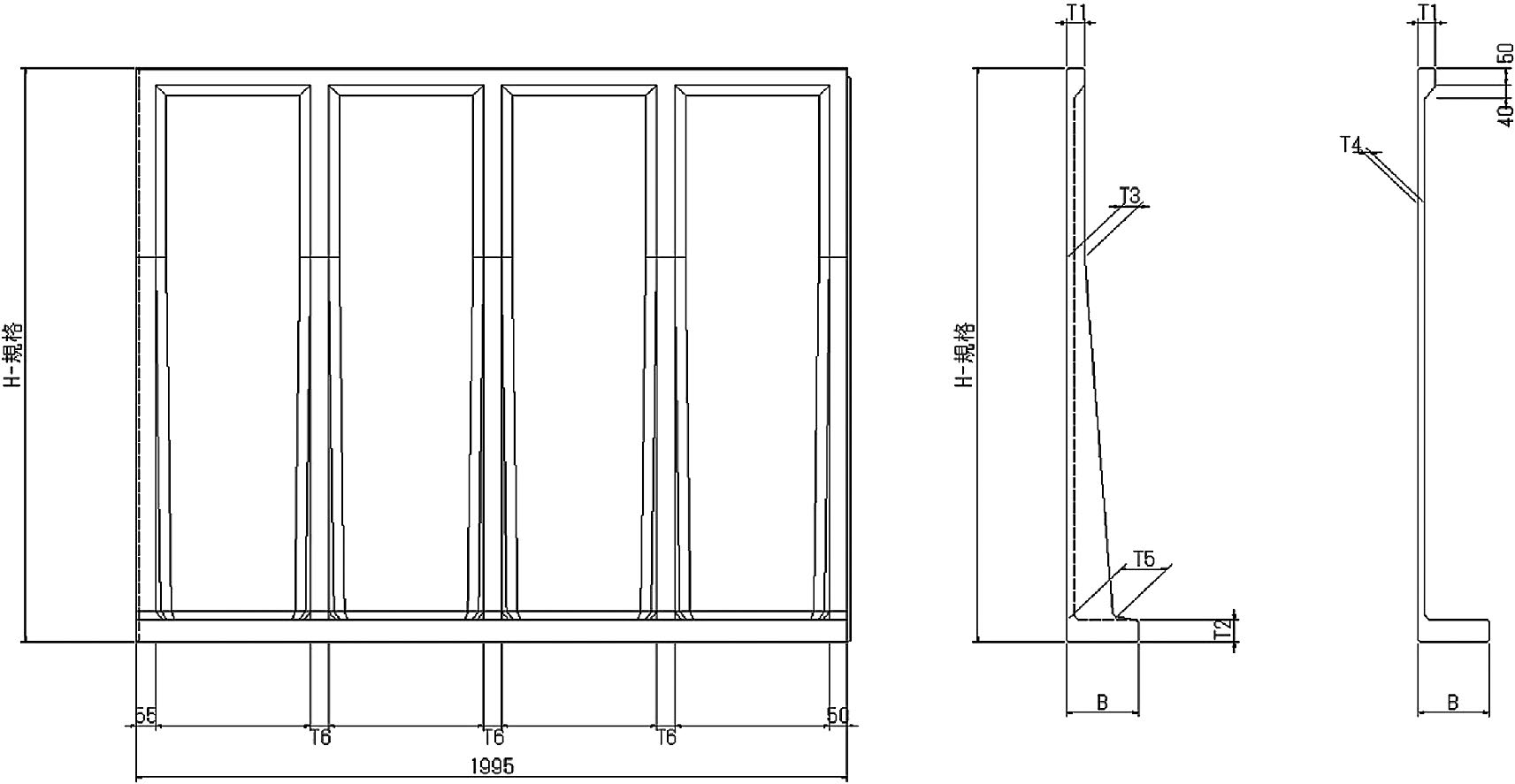
形状
● 形状

標準規格
(単位:mm)

施工手順

施工実績・事例
●施工実績

●施工事例
